狭小住宅は限られた床面積なので、収納はプランを考える時から計画することをおすすめします。家族全員が持っているモノ、衣類、電化製品、テーブルや椅子、ソファ、本棚や飾り棚などなど、すべてを計画せずに収めようとすると部屋の中に沢山あふれて出てきてしまうかもしれません。もともとが限られたスペースなので、寝室や、寛ぐ場所であるダイニングやリビングにモノがあふれてしまうと、部屋が狭くなり空間が落ち着かくなってしまいます。
建坪9坪の自邸中延の家での、プランに各階につくって収納をご紹介します。
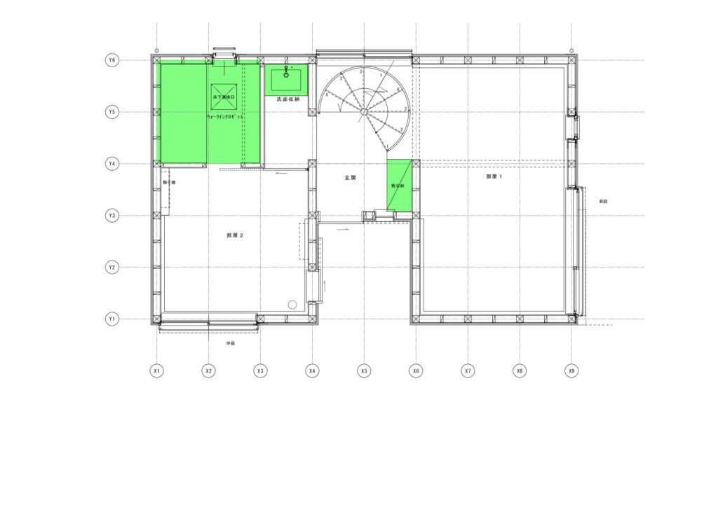
1階平面図ですがスキップフロアで部屋1は1m近く下がっています。緑色の部分は、床と上部床との間の高さは80㎝くらいですが、すべて収納として使っています。普段はあまり使わないものが収納されています。7.5畳くらいの広さがあります。

1階の平面図。左側の部屋2は寝室ですが4畳半と小さな部屋です。部屋の中にはほとんど家具は置いていないためスッキリとした空間です。その代わり隣接する2畳のウォークインクロゼットには布団が収納できる奥行きのある棚、服が沢山かけられるハンガーパイプがあります。かなり大容量の収納です。シンプルな洗面化粧台も近くに設置。靴収納は造作家具でつくっています。

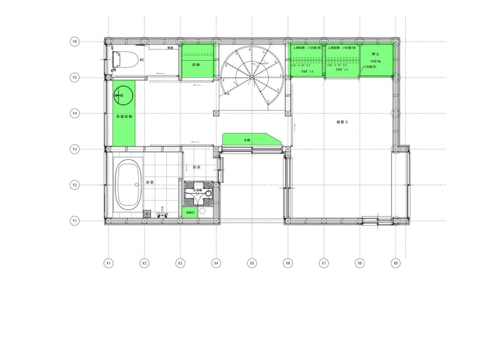
2階は浴室、トイレ、寝室としての部屋があります。寝室は6畳でベッドを使用。収納は布団も収納できる奥行きの深いものにしています。布団も収納できること、衣類ケースも沢山収納できます。ハンガーパイプもある服もかけられます。奥行きのある収納は大きなものも収納できるので、通常のクロゼットサイズの奥行きよりも容量は大きくなります。壁面収納のためスッキリしています。

トイレ横のスペースも奥行きの深い収納で、トイレットペーパーやバスタオルなど、水回りに関係するものを収納しています。収納は使う場所近くにあると便利です。洗面化粧台も広いので、収納もたっぷりあります。またベンチも兼ねた本棚もあります。脱衣室の中の小さい棚にはシャンプー類、洗濯洗剤があり、すぐに取り出せます。収納は、使う場所の近くに作ると動きに無駄がありません。
3階の平面図。キッチン、リビングダイニングがあります。

キッチンのカウンター収納は、炊飯器、トースターを設置。食器棚として両面から使えます。キッチンカウンターには電子レンジが入るようになっています。シンク下はゴミ箱が3個入っています。機能的で効率よく動けるキッチンです。部屋の上部の緑色部分は、斜線のため壁が斜めになっていますが、そのような場所でも工夫しながら収納しています。
キッチン上部のロフト平面図。3畳の広さがあります。普段使わないような大きなものを収納するのに便利です。

これらの収納は、狭小住宅でもどうしたらスッキリとして暮らすことができるか?ということをプランを考える時から計画をしています。収納をしっかりと最初から考えておくと、部屋の中がごちゃごちゃせず落ち着いた空間になるようになるかと思います。
