こちらは建売住宅に4人家族で住んでいましたが、お子さんの独立をきっかけに、夫婦二人でお互いの趣味を楽しみながら、ゆったりと暮らすために3年前に竣工したリノベーションです。

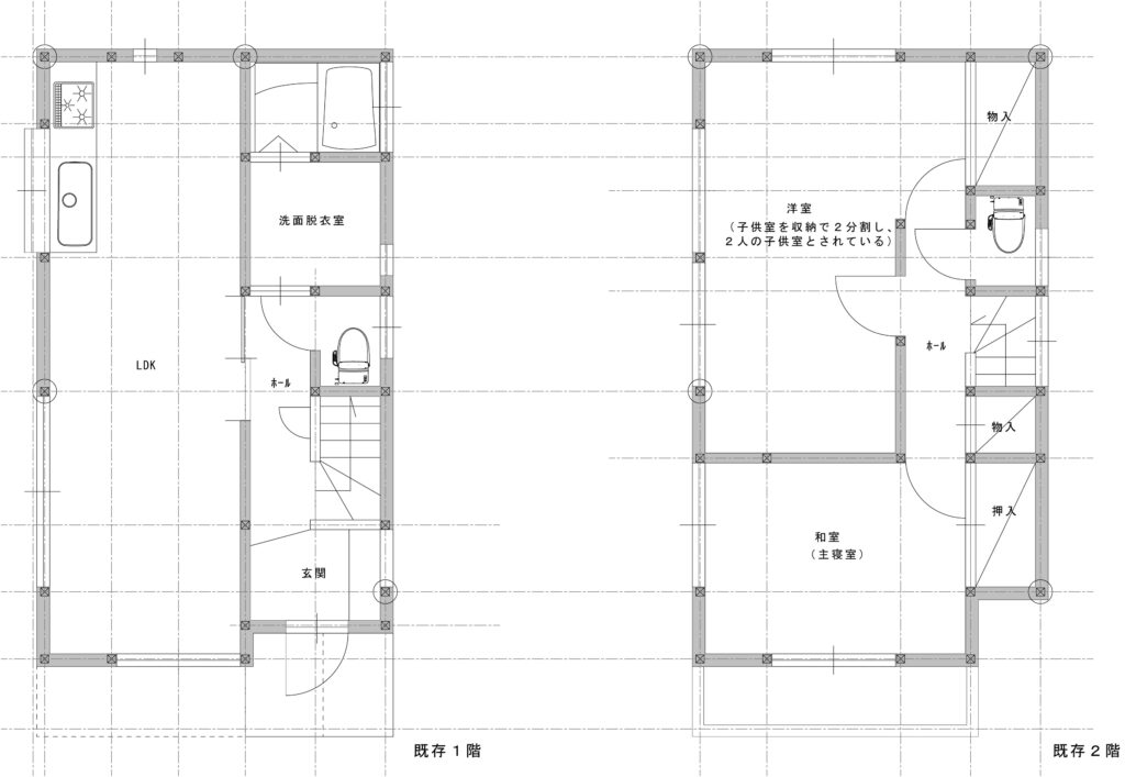
こちらが既存の図面です。1階にLDK、2階に小さく分割した部屋が3つありました。収納も不足していました。

日当たりのよい2階にLDKをつくり、1階は夫婦それぞれの部屋と、予備の部屋ひとつ寝室をつくりました。壁ではなく引き戸で仕切ることで、昼間はあけておくことで空気が流れるようにしています。

建物全体を耐震壁を補強し、既存の柱や筋交いは残しています。残しながら文庫本や小物が飾れる飾り棚を取り付けました。ダイニングの天井は上に上げれたので、少し高くすることで、梁をあらわしで出し、空間に変化をだしています。オープンな対面キッチンですが、手元の見えないカウンター収納を造作し、キッチンの雑多なものがダイニングから見えないようにしています。

キッチンはシステムキッチンですが、反対側のステンレスカウンター収納は造作でつくりました。こちらは、お菓子つくりが好きな奥様が、お菓子をつくる時に使いやすいステンレスで幅や奥行きも使い勝手のようように作りました。


リビングのカーテンボックスの中に間接照明があります。

既存和室だった部屋の押し入れが大き目の収納に。また階段との仕切り戸を既存の和室の障子に上下で木材を足し再利用して使っています。



既存でトイレがあったところに洗濯機スペースと収納棚を取り付けました。折れ戸で隠すことができます。選択するとそのまま2階ベランダに干せるので、家事動線も楽になります。

1階洗面脱衣室です。建て主さんお好みのシンクとタイルにしています。
読書好きのご主人、料理やお菓子つくりが好きな奥様が明るい陽射しが入る2階で料理がつくれる、趣味を楽しみ、ゆったりと寛げるリノベーションです。自然素材を使い、木の温かみが感じられる空間になりました。
