建替え前の庭の樹木をできるだけ残し、に庭面して1階の親世帯、2階子世帯の視線が交差します。

庭には大きな縁側があり樹木の花を眺められます。庭から陽射しが入り、風が通り抜けます。

1階庭の縁側と既存樹木。2階の小さなベランダも見えます。

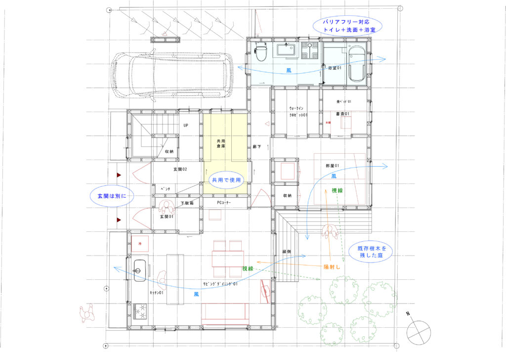
2階子世帯の平面図。庭側から陽射しが入り、建物へ風が通り抜けます。2階から庭へ視線が通ります。

1階のキッチンから庭を眺められます。キッチンは造作でシンプルなつくりです。

2階リビング。庭側からの窓から明るい陽射しが入ります。

2階リビング。天井は高く開放的な空間です。

2階畳スペースからリビングを見たところ。庭側からの陽ざしが明るく室内奥に入ります。

玄関側の外観。2世帯住宅は玄関は共有とする住宅もありますが、こちらは別々にしています。


玄関を入ると、二世帯共用で使える大きな収納スペースに続いています。靴や外部で使うものなど大きなものもざくっと収納できます。玄関には座れるベンチもあります。


1階トイレ、洗面、洗濯機、浴室はひとつの空間として、バリアフリーのつくりになっています。
二つの世帯のプライバシーをとても大切に考え独立性の高いものにしつつ、共有できるところは無駄なく共有収納としたり、庭へ視線が向くように自然と気配が感じられるようなプランになっています。
