敷地は東京近郊の郊外にある住宅地です。旗竿敷地ですが、敷地面積が202㎡あるため、南に面した庭も明るく陽射しがさしこみゆとりのある敷地です。小さなお子さんがのびのびと暮らせる家をご要望されていました。共働きご夫婦のため、家事は効率的にできること、でも子育ては楽しめること、家族の絆を大切に考えるプランにしました。

子育てしやすい家を考える時、・子供の動線を考えること、・大人の子供を見守る視線を考えることが大切です。
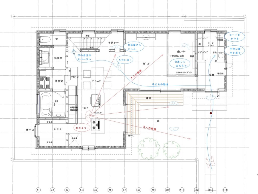
まずは、子供たちが外から帰ってくるところから考えます。

アプローチを通って玄関へ

玄関引き戸を開けると靴収納とその奥にシューズクロークがあります。ここはいろいろなモノがザックリ収納できます。

シューズクロークに入るとすぐに手洗いカウンターがあります。小さな子供は公園やいろんなところで思わぬものにさわってしまうものです。ざっとでもここで洗う習慣をつけるようにこちらの家ではおこなっています。

そしてここにはコートなど掛けられるハンガーもあります。花粉の季節などここで一度置いておくと室内に持ち込みません。

手を洗ってコートを脱いだら、室内へ。明るいリビング、ダイニングとつながります。リビングには小上がりの畳スペースがあります。

ここには引き出しがあるので、おもちゃは子供たちに必要なものが収納でき、お客様がみえたときもさっと収納しやすいです。

南の庭に面してL型のプランになっています。奥行きが広めの縁側があり、そこに座って遊んでもよいしお昼寝も気持ちよさそうですね。

ダイニング横の階段の下は、建て主さんのご要望でつくられた 小さな子供しか入れない「隠れ家」。ここにはおままごとセットなど子供が自分で工夫しながら遊べる場所になっています。

「隠れ家」には小さな窓があってお店屋さんごっこができます。

ダイニングに本棚と一体になった階段があります。子供たちは階段に座って本も読むこともできます。家族みんなの本棚です。このように玄関からリビングダイニングを通って、2階の自分たちの子供スペースへ行きます。「ただいま!」「お帰りなさい」という会話が自然に生まれます。


子供スペースは、子供たちが小さいうちは仕切らず広く使ってします。成長に合わせてその時必要な仕切り方をするような計画にしています。
まずは、子育てしやすい家 の子供の動線について、小さい時には帰宅後すぐに個室に入ってしまわないように、大人の見守りができるようにしています。
次は大人のの見守りの視線について考えます。
